Kessel-Lo
€ 645 000
Kriekenbergweg 25
Deze bouwgrond is rustig gelegen in een eenrichtingsstraat te Boutersem, in een groene omgeving. Het perceel biedt de ideale kans om uw droomwoning te realiseren.
Het perceel heeft een prachtig uitzicht het achtergelegend groen, dit in combinatie met de goede oriëntatie maakt dit een ideale plek om te bouwen.
Het perceel ingeschikt voor het bouwen van een open bebouwing.
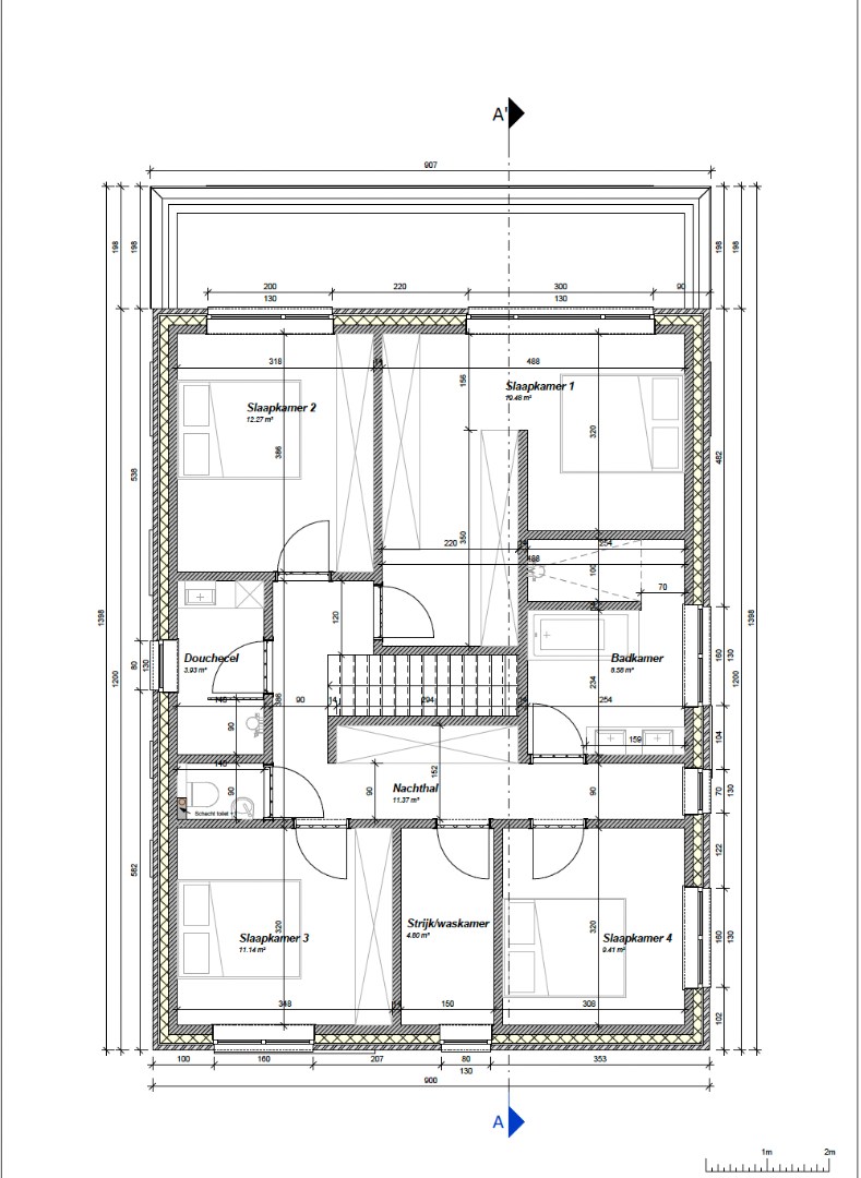
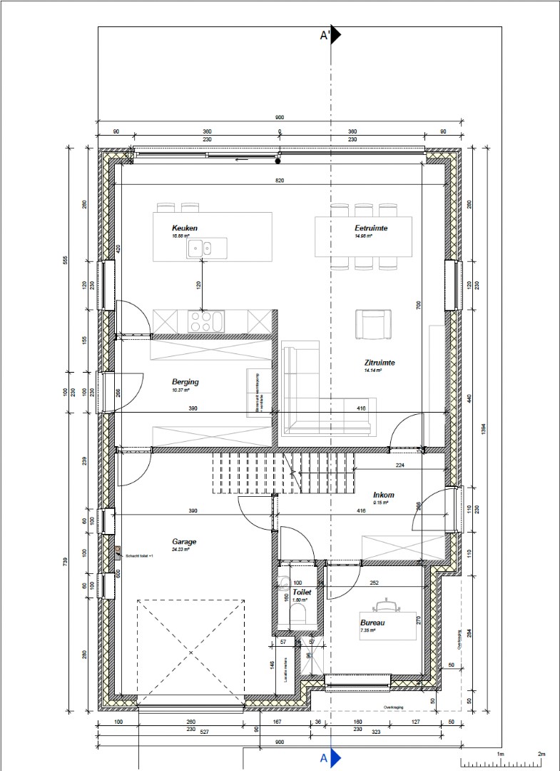
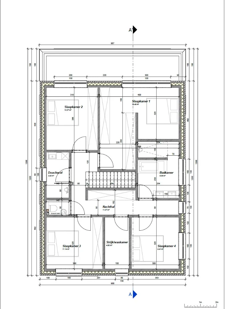
Er werden reeds plannen getekend voor een woning, deze kan u bij de foto's vinden.
De nutsvoorzieningen zijn reeds aanwezig.
Voor meer informatie, contacteer ons gerust!
| Adres: | Moffelstraat 20 Boutersem |
| Referentie: | TK/12.2025 |
| Vraagprijs: | € 648.813 |
| Type: | Villa |
| Beschikbaar vanaf: | Bij akte |
| Ligging: | Landelijk |
| Perceeloppervlakte: | 1.092 m² |
| Perceelbreedte: | 17 m |
| Perceeldiepte: | 14,7 m |
| Bewoonbare opp.: | 230 m² |
| Type constructie: | Traditioneel |
| Bouwjaar: | 2025 |
| Gevelbreedte: | 9 m |
| Bouwlagen: | 2 |
| Algemene staat: | Instapklaar |
| Slaapkamers: | 4 |
| Badkamers: | 2 |
| WC: | 2 |
| Woonkamer: | Ja |
| Keuken: | Ja |
| Tuin: | Ja |
| Tuin oriëntatie: | Zuid |
| Snelweg: | Ja - op 3000 m tot 4000 m |
| Treinstation: | Ja - op 2000 m tot 3000 m |
| Bushalte: | Ja - op 500 m tot 1000 m |
| Winkel: | Ja - op minder dan 500 m |
| School: | Ja - op minder dan 500 m |
| Bank: | Ja - op 500 m tot 1000 m |
| Ontspanning: | Ja - op minder dan 500 m |
| Restaurant: | Ja - op minder dan 500 m |
| Dak: | Plat dak |
| Beglazing: | Hoogrendementsglas |
| Kadastrale Oppervlakte: | 1.092 m² |
| EnergyClass: | A++ |
| Renovatieplicht: | Neen |
| Stedenbouwkundige vergunning: | Neen |
| Voorkooprecht: | Neen |
| Verkavelingsvergunning van toepassing: | Ja |
| Stedenbouwkundige bestemming: | Woongebied |
| Dagvaarding en herstelvordering: | Geen rechterlijke herstelmaatregel of bestuurlijke maatregel opgelegd |
| Overstromingsgevoelig: | Geen overstromingsgevoelig gebied |
| Overstromingsgebied: | Geen afgebakende zones |
| Overstromingskans perceel (P-score): | |
| Erfgoed: | Geen beschermd erfgoed |