Open bebouwing op unieke locatie in Lubbeek met veel mogelijkheden – EPC 567 kWh/m² - bewoonbare opp. 144 m²
€ 398 000
Deze te renoveren open bebouwing is gelegen in Lubbeek is een verkeersluwestraat met zicht op de omliggende velden.
De indeling van de woning is als volgt:
We komen binnen in de ruime inkomhal met plaats voor een vestiairekast. Via de inkomhal betreden we de lichtrijke leefruimte. Aansluitend vinden we de eetplaats en keuken. Naast de keuken vinden we de veranda. Verder vinden we op deze verdieping nog een badkamer met bad en enkel lavabo en een apart toilet. Achter de badkamer en toilet vinden we 2 ruime garages.
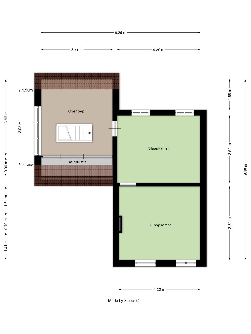
Op de eerste verdieping vinden we 2 ruime slaapkamers (16m², 15m²).
Verder beschikt de woning over een ruime oprit. Achteraan beschikt het pand over een aangename tuin met terras, serre en tuinhuis.
De woning is uitgerust met een regenwaterput van 10 000L.
De elektriciteit is niet conform. De verwarming werkt op aardgas. EPC F. Asbestveilig (maar niet asbestvrij).
Voor meer info of een bezoek ter plaatse, neem gerust contact met ons op!
Algemeen
| Adres: | Uilekot 21 Lubbeek |
| Referentie: | TK/04.2026 |
| Vraagprijs: | € 398.000 |
| Type: | Woning |
| Beschikbaar vanaf: | Bij akte |
| Ligging: | Landelijk |
| Perceeloppervlakte: | 897 m² |
| Perceelbreedte: | 31,4 m |
| Perceeldiepte: | 56,2 m |
| Bewoonbare opp.: | 144 m² |
| Type constructie: | Traditioneel |
| Bouwjaar: | 1930 |
| Gevelbreedte: | 7,3 m |
| Algemene staat: | Te renoveren |
Indeling
| Slaapkamers: | 2 (15.02 m², 16.12 m²) |
| Badkamers: | 1 |
| WC: | 1 |
| Woonkamer: | 31 m² |
| Keuken: | 8 m², Gesloten keuken, Ingericht met toestellen |
| Zolder: | Ja |
| Terras: | Ja |
| Tuin: | Ja |
| Garage: | 2 |
| Garage Oppervlakte: | 46 m² |
Comfort
| Snelweg: | Ja - op 4000 m tot 5000 m |
| Treinstation: | Ja - op 4000 m tot 5000 m |
| Bushalte: | Ja - op 500 m tot 1000 m |
| Winkel: | Ja - op 1000 m tot 1500 m |
| School: | Ja - op 500 m tot 1000 m |
| Bank: | Ja - op 1000 m tot 1500 m |
| Ontspanning: | Ja - op minder dan 500 m |
| Restaurant: | Ja - op 2000 m tot 3000 m |
| Raamwerk: | PVC |
| Dak: | Zadeldak |
| Beglazing: | Dubbel |
| Elektriciteit: | Niet conform |
| Verwarming: | CV-ketel, Aardgas |
| Internet: | Ja |
| Rolluiken: | Ja |
Wettelijke gegevens
| Niet geïndexeerd K.I.: | € 461 |
| Kadastrale benaming: | 24066 LUBBEEK 1 AFD/LUBBEEK/ (Uilekot ) |
| Kadastrale Nummers: | P0000 |
| Kadastrale Oppervlakte: | 897 m² |
| EPC Certificaat Nr.: | 20220222-0002551545-RES-1 |
| EPC Index: | 567,00 kWh/(m² jaar) |
| EnergyClass: | F |
| EPC Geldig tot: | 22/02/2032 |
| Renovatieplicht: | Ja |
| Stedenbouwkundige vergunning: | Neen |
| Voorkooprecht: | Neen |
| Verkavelingsvergunning van toepassing: | Neen |
| Maatregelenregister: | Neen |
| Stedenbouwkundige bestemming: | Woongebied met landelijk karakter |
| Dagvaarding en herstelvordering: | Geen rechterlijke herstelmaatregel of bestuurlijke maatregel opgelegd |
| Overstromingsgevoelig: | Geen overstromingsgevoelig gebied |
| Overstromingsgebied: | Geen afgebakende zones |
| Overstromingskans perceel (P-score): | A |
| Overstromingskans gebouw (G-score): | A |
| Erfgoed: | Geen beschermd erfgoed |
| Deze eigendom kan onderhevig zijn aan de renovatieverplichting die door de Vlaamse overheid wordt opgelegd voor residentiële gebouwen. Consulteer voor meer informatie de website van het Vlaams Energie- en Klimaatagentschap via https://www.vlaanderen.be/een-woning-kopen/renovatieverplichting-voor-residentiele-gebouwen | |