Woning met 4 slaapkamers in Heverlee! – EPC 405 kWh/m² - bewoonbare opp. 150 m²
€ 345 000
Deze op te frissen woning is gelegen in Heverlee en biedt tal van mogelijkheden.
Indeling:
We betreden de woning via de inkomhal met plaats voor vestiaire. Links van de inkomhal bevindt zich de woonkamer en eetkamer, aansluitend vinden we de ruime geïnstalleerde keuken. Op deze verdieping vinden we ook nog de badkamer met ligbad, enkel lavabo en toilet alsook een gastentoilet.
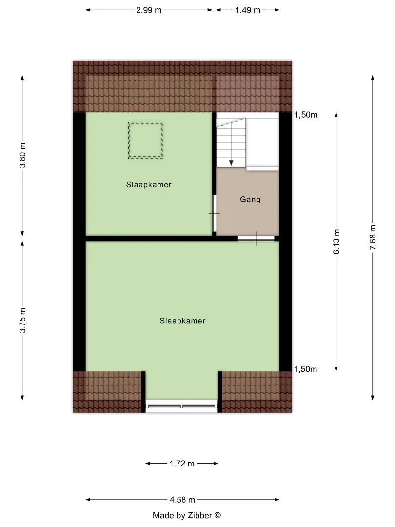
Via de trap bereiken we de eerste verdieping. Hier bevindt zich de 1ste slaapkamer van 17m². Verder vinden we de 2de slaapkamer van 11m².
Op de tweede verdieping vinden we de zolder met vaste trap. Hier bevinden zich nog 2 ruime slaapkamers van 17m² en 11m².
Tot slot is er een ruime en droge kelder voor stockage.
Elektriciteit is niet conform. EPC E. Verwarming op aardgas. Niet-asbestveilig.
Voor meer info of een bezoek ter plaatste, mag u ons steeds contacteren!
Algemeen
| Adres: | Vlietstraat 34 Heverlee |
| Referentie: | TK/04.2026 |
| Vraagprijs: | € 345.000 |
| Type: | Woning |
| Beschikbaar vanaf: | Bij akte |
| Ligging: | Voorstad |
| Perceelbreedte: | 4,8 m |
| Perceeldiepte: | 14 m |
| Bewoonbare opp.: | 150 m² |
| Type constructie: | Traditioneel |
| Bouwjaar: | 1931 |
| Gevelbreedte: | 4,8 m |
| Algemene staat: | Op te frissen |
Indeling
| Slaapkamers: | 4 (17 m², 11 m², 17 m², 11 m²) |
| Badkamers: | 1 |
| WC: | 1 |
| Woonkamer: | 22 m² |
| Keuken: | 16 m², Open keuken, Ingericht met toestellen |
| Kelder: | Ja |
Comfort
| Snelweg: | Ja - op 4000 m tot 5000 m |
| Treinstation: | Ja - op 1500 m tot 2000 m |
| Bushalte: | Ja - op minder dan 500 m |
| Winkel: | Ja - op minder dan 500 m |
| School: | Ja - op minder dan 500 m |
| Bank: | Ja - op 1500 m tot 2000 m |
| Ontspanning: | Ja - op minder dan 500 m |
| Restaurant: | Ja - op 500 m tot 1000 m |
| Raamwerk: | PVC |
| Dak: | Zadeldak |
| Beglazing: | Dubbel |
| Elektriciteit: | Niet conform |
| Verwarming: | CV-ketel, Aardgas - CV-ketel van 2012. |
| Internet: | Ja |
| Rolluiken: | Ja |
Wettelijke gegevens
| Niet geïndexeerd K.I.: | € 535 |
| Kadastrale benaming: | 24433 LEUVEN 12 AFD/HEVERLEE 3 AFD/ (Vlietstraat ) |
| Kadastrale Nummers: | P0000 |
| Kadastrale Oppervlakte: | 65 m² |
| EPC Certificaat Nr.: | 20260305-0003817488-RES-1 |
| EPC Index: | 405,00 kWh/(m² jaar) |
| EnergyClass: | E |
| EPC Geldig tot: | 5/03/2036 |
| Renovatieplicht: | Ja |
| Stedenbouwkundige vergunning: | Neen |
| Voorkooprecht: | Neen |
| Verkavelingsvergunning van toepassing: | Neen |
| Stedenbouwkundige bestemming: | Woongebied |
| Dagvaarding en herstelvordering: | Geen rechterlijke herstelmaatregel of bestuurlijke maatregel opgelegd |
| Overstromingsgevoelig: | Geen overstromingsgevoelig gebied |
| Overstromingsgebied: | Geen afgebakende zones |
| Overstromingskans perceel (P-score): | B |
| Overstromingskans gebouw (G-score): | B |
| Erfgoed: | Geen beschermd erfgoed |
| Deze eigendom kan onderhevig zijn aan de renovatieverplichting die door de Vlaamse overheid wordt opgelegd voor residentiële gebouwen. Consulteer voor meer informatie de website van het Vlaams Energie- en Klimaatagentschap via https://www.vlaanderen.be/een-woning-kopen/renovatieverplichting-voor-residentiele-gebouwen | |