Half open bebouwing met 3 slaapkamers, tuin, terras en tuinhuis in Kessel-Lo! – EPC F kWh/m² - bewoonbare opp. 128 m²
€ 328 000
Deze te renoveren halfopen bebouwing is gelegen in Kessel-Lo, in een autoluwe straat. De woning combineert een rustige woonomgeving met een vlotte bereikbaarheid.
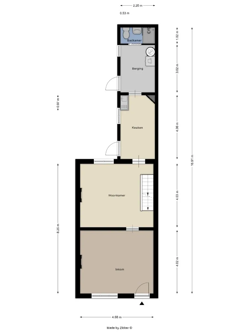
Bij aankomst betreedt u de woning via de woonkamer die in verbinding staat met de eetkamer en keuken. Achter de keuken vinden we nog een berging en badkamer met douche, enkel lavabo en toilet.
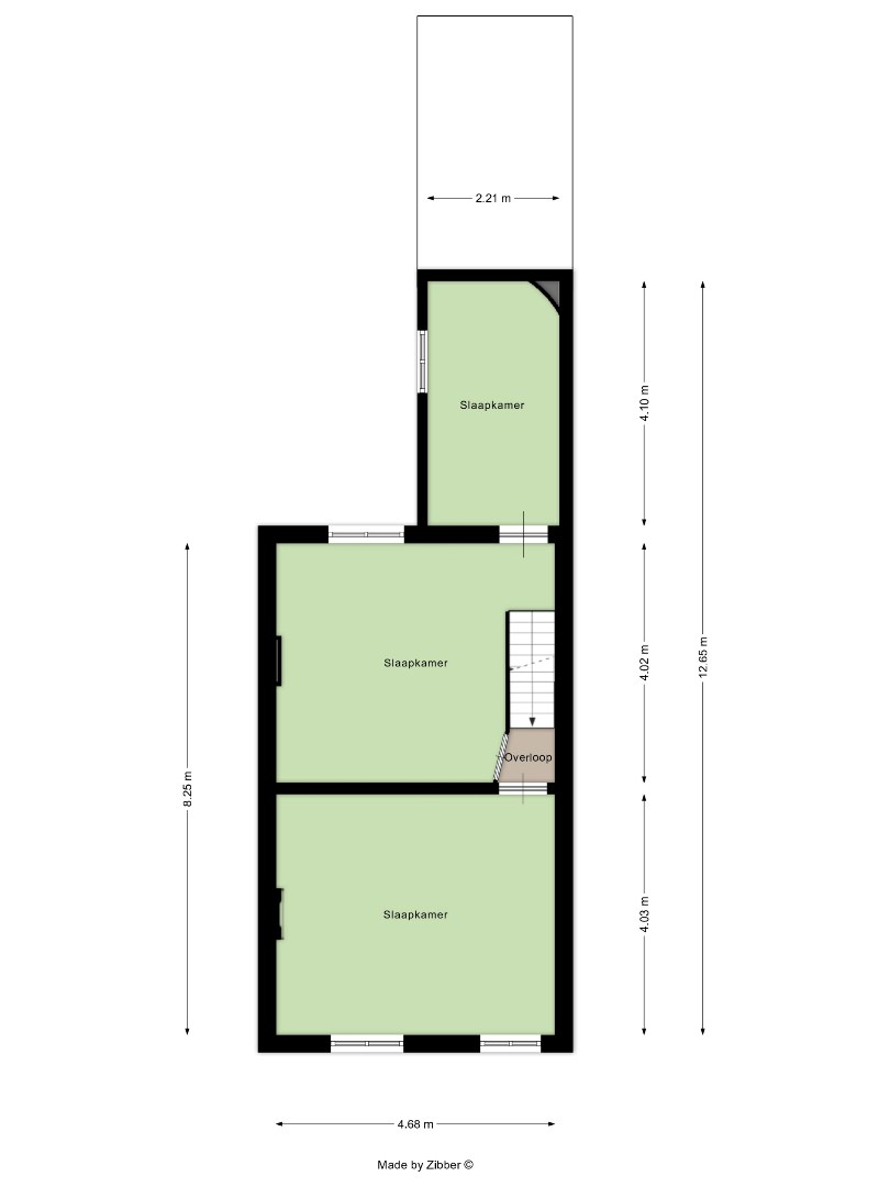
Via de trap bereiken we de eerste verdieping naar 3 ruime slaapkamers van 19m², 19m² en 9m².
Verder is er een vaste trap naar de tweede verdieping (zolder). Deze kan eventueel omgebouwd worden tot extra slaapkamer en/of badkamer. De zolder heeft een oppervlakte van maar liefst 39m²!
De woning heeft nog uitbreiding potentieel.
Er is plaat voor een auto voor de woning.
Achteraan de woning bevindt zich nog de aangename west gerichte tuin, terras en tuinhuis.
Verder beschikt deze woning nog over een kelder.
Verwarming is op aardgas. EPC F, renovatieverplichting. Niet-asbestveilig. De elektrische keuring is niet conform.
Neem vandaag nog contact met ons op voor een bezichtiging en ontdek uw nieuwe thuis!
Algemeen
| Adres: | Wilselsesteenweg 147 Kessel-Lo |
| Referentie: | TK/04.2026 |
| Vraagprijs: | € 328.000 |
| Type: | Woning |
| Beschikbaar vanaf: | Bij akte |
| Ligging: | Voorstad |
| Perceeloppervlakte: | 310 m² |
| Perceelbreedte: | 7,2 m |
| Perceeldiepte: | 45,1 m |
| Bewoonbare opp.: | 128 m² |
| Type constructie: | Traditioneel |
| Gevelbreedte: | 5,4 m |
| Algemene staat: | Te renoveren |
Indeling
| Slaapkamers: | 3 (18.86 m², 18.81 m², 9.06 m²) |
| Badkamers: | 1 |
| WC: | 1 |
| Woonkamer: | 19 m² |
| Keuken: | 9 m², Gesloten keuken, Ingericht zonder toestellen |
| Zolder: | 39 m² |
| Kelder: | 18 m² |
| Terras: | Ja |
| Tuin: | Ja |
Comfort
| Snelweg: | Ja - op 1500 m tot 2000 m |
| Treinstation: | Ja - op 2000 m tot 3000 m |
| Bushalte: | Ja - op minder dan 500 m |
| Winkel: | Ja - op minder dan 500 m |
| School: | Ja - op 1000 m tot 1500 m |
| Bank: | Ja - op 1000 m tot 1500 m |
| Ontspanning: | Ja - op minder dan 500 m |
| Restaurant: | Ja - op 500 m tot 1000 m |
| Raamwerk: | Hout |
| Dak: | Zadeldak |
| Beglazing: | Enkel |
| Elektriciteit: | Niet conform |
| Verwarming: | CV-ketel, Aardgas |
| Internet: | Ja |
| Rolluiken: | Ja |
Wettelijke gegevens
| Niet geïndexeerd K.I.: | € 438 |
| Kadastrale benaming: | 24051 LEUVEN 7 AFD/KESSEL-LO 1 AFD/ |
| Kadastrale Nummers: | 0287T12P0000 |
| Kadastrale Oppervlakte: | 310 m² |
| EPC Certificaat Nr.: | 20250125-0003513630-RES-1 |
| EPC Index: | 1100,00 kWh/(m² jaar) |
| EnergyClass: | F |
| EPC Geldig tot: | 25/01/2035 |
| Renovatieplicht: | Ja |
| Stedenbouwkundige vergunning: | Neen |
| Voorkooprecht: | Neen |
| Verkavelingsvergunning van toepassing: | Neen |
| Maatregelenregister: | Neen |
| Stedenbouwkundige bestemming: | Woongebied |
| Dagvaarding en herstelvordering: | Geen rechterlijke herstelmaatregel of bestuurlijke maatregel opgelegd |
| Overstromingsgevoelig: | Geen overstromingsgevoelig gebied |
| Overstromingsgebied: | Geen afgebakende zones |
| Overstromingskans perceel (P-score): | |
| Overstromingskans gebouw (G-score): | |
| Erfgoed: | Geen beschermd erfgoed |
| Deze eigendom kan onderhevig zijn aan de renovatieverplichting die door de Vlaamse overheid wordt opgelegd voor residentiële gebouwen. Consulteer voor meer informatie de website van het Vlaams Energie- en Klimaatagentschap via https://www.vlaanderen.be/een-woning-kopen/renovatieverplichting-voor-residentiele-gebouwen | |