Appartement met 2 slaapkamers, ruim terras en private kelderberging in Heverlee! – EPC 114 kWh/m² - bewoonbare opp. 85 m²
€ 345 000
Dit appartement is gelegen in Heverlee, op slechts 5 minuten fietsen van Leuven centrum.
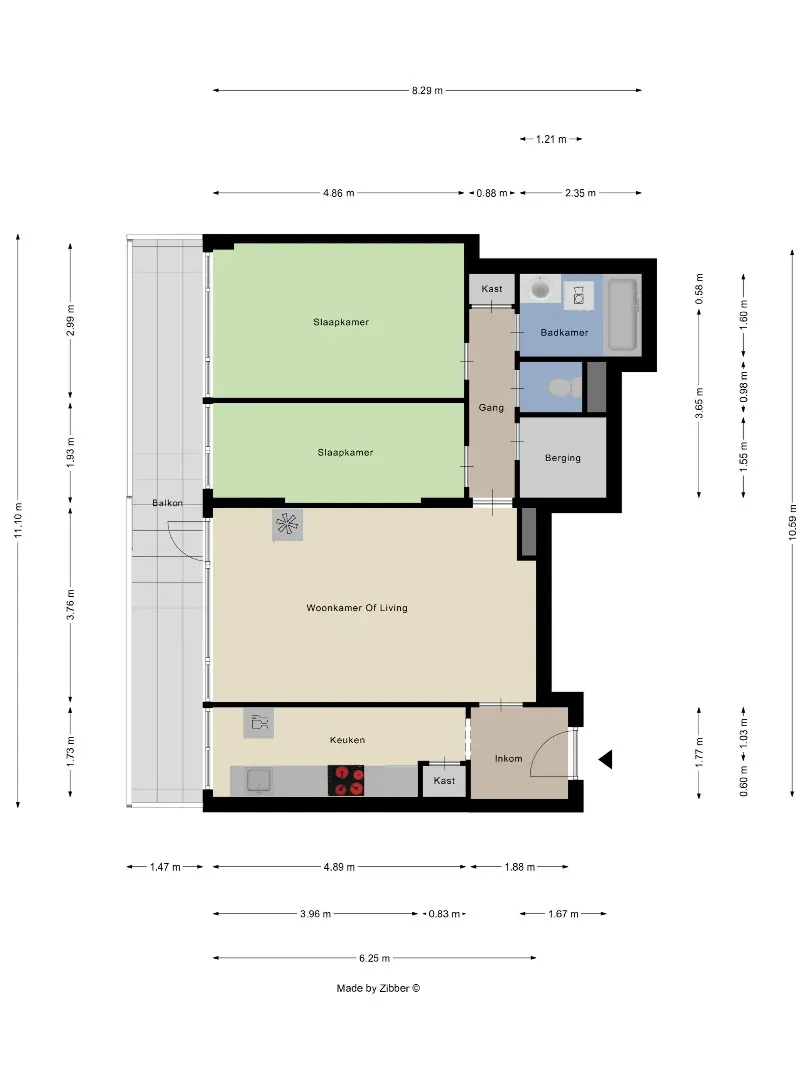
Dit appartement heeft een inkomhal met plaats voor vestiaire. Via de inkomhal bereiken we de lichtrijke leefruimte, waar men uitkijkt op het aangename terras van 16m². Naast de leefruimte vinden we de keuken. Verder heeft dit appartement 2 slaapkamers van 15m² en 9m², een badkamer met bad, enkel lavabo en aansluiting voor wasmachine en droogkast. Verder is er een praktische berging voor stockage. Als ook apart toilet.
De provisie van de gemeenschappelijke delen bedraagt 120 euro / maand. Hierin zit een voorschot voor het verbruik van verwarming en water.
De akte dient uiterlijk midden augustus verleden te worden.
EPC B. Elektriciteit is niet conform. Asbestveilig.
Bij verdere vragen of interesse kan u ons steeds bereiken.
Algemeen
| Adres: | Tervuursevest 21/0807 Heverlee |
| Referentie: | TK/02.2026 |
| Vraagprijs: | € 345.000 |
| Type: | Appartement |
| Ligging: | Voorstad |
| Bewoonbare opp.: | 85 m² |
| Type constructie: | Traditioneel |
| Bouwjaar: | 1967 |
| Bouwlagen: | 1 |
| Op verdieping: | 8 |
| Algemene staat: | Instapklaar |
Indeling
| Slaapkamers: | 2 (14.53 m², 9.38 m²) |
| Badkamers: | 1 |
| WC: | 1 |
| Woonkamer: | 24 m² |
| Keuken: | 8 m², Gesloten keuken, Ingericht met toestellen |
| Berging: | 2 m² |
| Kelder: | Ja |
| Terras: | 16 m² |
Comfort
| Snelweg: | Ja - op 3000 m tot 4000 m |
| Treinstation: | Ja - op 2000 m tot 3000 m |
| Bushalte: | Ja - op minder dan 500 m |
| Winkel: | Ja - op minder dan 500 m |
| School: | Ja - op minder dan 500 m |
| Bank: | Ja - op 500 m tot 1000 m |
| Ontspanning: | Ja - op minder dan 500 m |
| Restaurant: | Ja - op 500 m tot 1000 m |
| Raamwerk: | Draai-/kiepramen, PVC |
| Dak: | Plat dak |
| Beglazing: | Dubbel - De ramen werden vernieuwd rond het jaar 2020. |
| Elektriciteit: | Niet conform |
| Verwarming: | CV-ketel, Blokverwarming, Stookolie |
| Lift: | Ja |
| Internet: | Ja |
| Rookdetector: | Ja |
| Videofoon: | Ja |
Wettelijke gegevens
| Niet geïndexeerd K.I.: | € 746 |
| Kadastrale benaming: | 1 - Tervuursevest 21 0807 (App 8J/K203) |
| Kadastrale Nummers: | 0158KP0169 |
| EPC Certificaat Nr.: | 20201109-0002331185-RES-1 |
| EPC Index: | 114,00 kWh/(m² jaar) |
| EnergyClass: | B |
| EPC Geldig tot: | 9/11/2030 |
| Renovatieplicht: | Neen |
| Stedenbouwkundige vergunning: | Ja |
| Voorkooprecht: | Neen |
| Verkavelingsvergunning van toepassing: | Neen |
| Dagvaarding en herstelvordering: | Geen rechterlijke herstelmaatregel of bestuurlijke maatregel opgelegd |
| Overstromingsgevoelig: | Geen overstromingsgevoelig gebied |
| Overstromingsgebied: | Geen afgebakende zones |
| Overstromingskans perceel (P-score): | A |
| Overstromingskans gebouw (G-score): | A |
| Erfgoed: | Geen beschermd erfgoed |