Appartement met 2 slaapkamers, terras, ondergrondse autostaanplaats en private kelderberging in Leuven! – EPC 125 kWh/m² - bewoonbare opp. 94 m²
€ 299 000
Dit 2-slaapkamerappartement bevindt zich in het centrum van Leuven op de 4de verdieping.
Het appartementsgebouw beschikt over een lift.
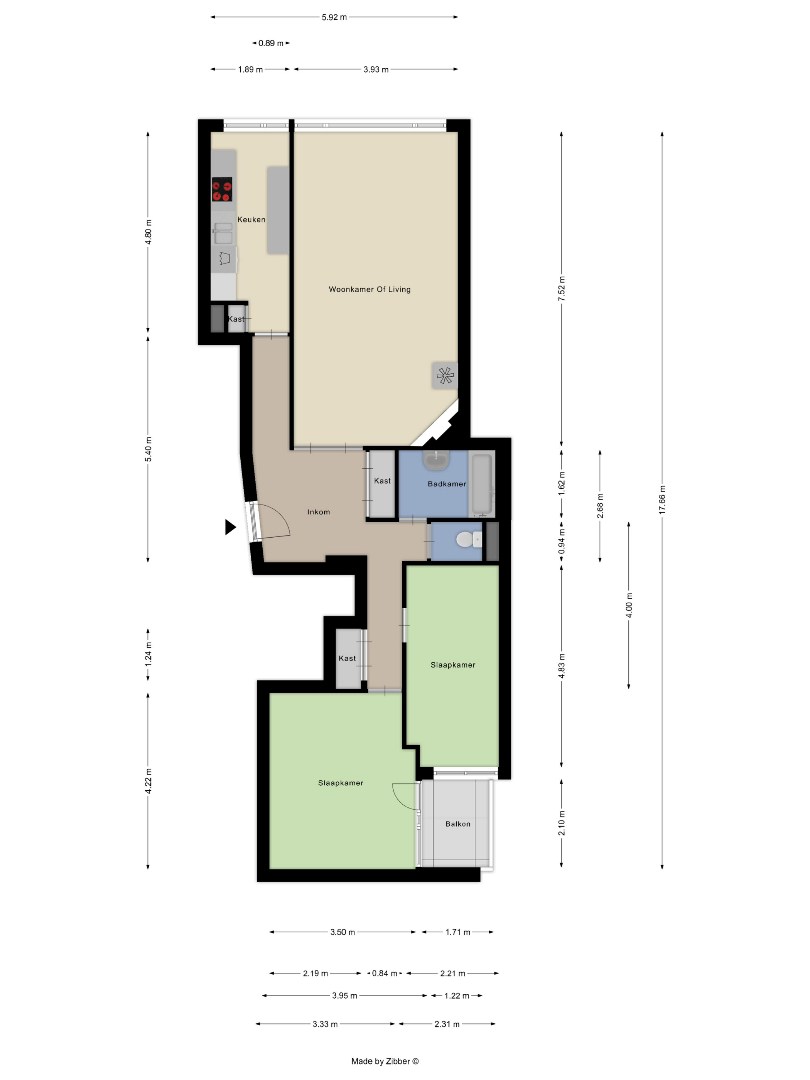
Dit op te frissen, maar energiezuinige appartement bestaat uit een inkomhal met vestiairekast, een leefruimte met geïnstalleerde keuken. Verder hebben we 2 ruime slaapkamers van 15m² en 10,5m², een badkamer met bad en enkel lavabo. Verder is er een apart toilet.
EPC B. Het appartement is asbestveilig. De ramen zijn recent vernieuwd, PVC HR glas. Elektriciteit is niet conform.
Verder is er een terras/balkon, een ondergrondse autostaanplaats en private kelderberging. De autostaanplaats dient verplicht bij aangekocht te worden voor 35.000 euro.
Aarzel niet om ons te contacteren voor verdere inlichtingen of voor een plaatsbezoek!
Algemeen
| Adres: | Maria Theresiastraat 14/0406 Leuven |
| Referentie: | TK/02.2026 |
| Vraagprijs: | € 299.000 |
| Type: | Appartement |
| Ligging: | Stad |
| Bewoonbare opp.: | 94 m² |
| Type constructie: | Traditioneel |
| Bouwjaar: | 1967 |
| Bouwlagen: | 1 |
| Op verdieping: | 4 |
| Algemene staat: | Op te frissen |
Indeling
| Slaapkamers: | 2 (15 m², 10.5 m²) |
| Badkamers: | 1 |
| WC: | 1 |
| Woonkamer: | 30 m² |
| Keuken: | 9 m², Gesloten keuken, Ingericht met toestellen |
| Kelder: | Ja |
| Terras: | 4 m² |
| Garage: | 1 |
Comfort
| Snelweg: | Ja - op 4000 m tot 5000 m |
| Treinstation: | Ja - op 500 m tot 1000 m |
| Bushalte: | Ja - op 500 m tot 1000 m |
| Winkel: | Ja - op minder dan 500 m |
| School: | Ja - op minder dan 500 m |
| Bank: | Ja - op 500 m tot 1000 m |
| Ontspanning: | Ja - op minder dan 500 m |
| Restaurant: | Ja - op minder dan 500 m |
| Raamwerk: | PVC |
| Dak: | Plat dak |
| Beglazing: | Dubbel |
| Elektriciteit: | Niet conform |
| Verwarming: | CV-ketel, Blokverwarming, Stookolie |
| Lift: | Ja |
| Internet: | Ja |
| Rookdetector: | Ja |
Wettelijke gegevens
| Niet geïndexeerd K.I.: | € 1.058 |
| Kadastrale benaming: | 24502 LEUVEN 2 AFD (Maria-Theresiastraat 12/ 14 ) |
| Kadastrale Nummers: | P0035 |
| Kadastrale Oppervlakte: | 0 m² |
| EPC Certificaat Nr.: | 20230918-0002955787-RES-1 |
| EPC Index: | 125,00 kWh/(m² jaar) |
| EnergyClass: | B |
| EPC Geldig tot: | 18/09/2033 |
| Renovatieplicht: | Neen |
| Stedenbouwkundige vergunning: | Neen |
| Voorkooprecht: | Neen |
| Verkavelingsvergunning van toepassing: | Neen |
| Stedenbouwkundige bestemming: | Woongebied |
| Dagvaarding en herstelvordering: | Geen rechterlijke herstelmaatregel of bestuurlijke maatregel opgelegd |
| Overstromingsgevoelig: | Geen overstromingsgevoelig gebied |
| Overstromingsgebied: | Geen afgebakende zones |
| Overstromingskans perceel (P-score): | |
| Overstromingskans gebouw (G-score): | |
| Erfgoed: | Geen beschermd erfgoed |