Volledig gerenoveerde woning met 3 slaapkamers, 2 badkamers en tuin in Tienen! – EPC A - bewoonbare opp. 139 m²
€ 480 000
Deze volledig gerenoveerde woning bevindt zich in een verkeersluwe straat vlakbij het centrum van Tienen.
De woning werd in 2025 volledig vernieuwd.
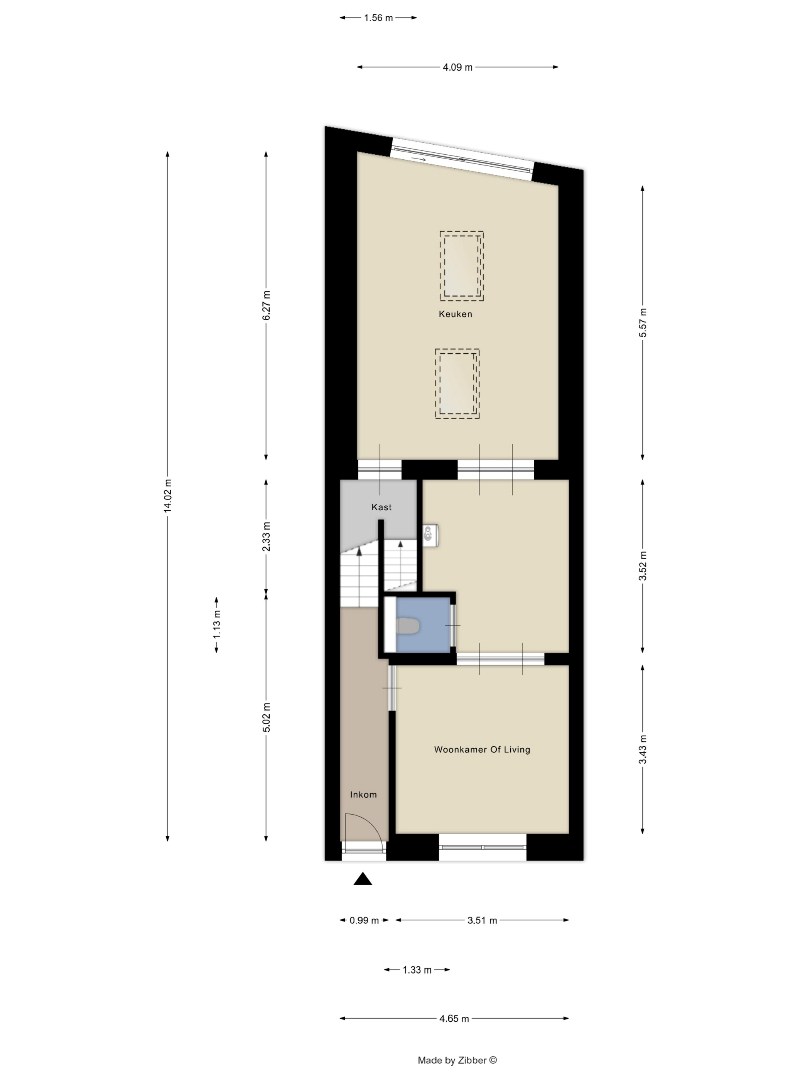
We komen binnen via de inkomhal die toegang geeft tot de woonkamer, eetplaats en open keuken. Voor de keuken wordt een budget van 10 000 euro voorzien, de keuzes kunnen nog gemaakt worden. De verkopers zal de keuken plaatsen.
De keuken met eetplaats geeft toegang tot het aangelegde terras en tuin.
Verder is er nog een apart toilet en berging naast de keuken.
Op de 1ste verdieping vinden we 2 aangename slaapkamers en een 1ste badkamer met lavabo, toilet en douche.
De zolderverdieping is volledig afgewerkt tot 3de slaapkamer met eigen badkamer.
Tot snel is er nog een kelder.
Alle leidingen zijn reeds getrokken voor het plaatsen van een airco. De woning is uitgerust met een ventilatiesysteem D alsook 12 zonnenpanelen.
Bij vragen kan u ons steeds contacteren.
Algemeen
| Adres: | Moespikstraat 78 Tienen |
| Referentie: | TK/04.2026 |
| Vraagprijs: | € 480.000 |
| Type: | Woning |
| Beschikbaar vanaf: | Bij akte |
| Ligging: | Stad |
| Perceeloppervlakte: | 96 m² |
| Perceelbreedte: | 5 m |
| Perceeldiepte: | 20,2 m |
| Bewoonbare opp.: | 139 m² |
| Type constructie: | Traditioneel |
| Bouwjaar: | 1918 |
| Renovatiejaar: | 2025 |
| Gevelbreedte: | 5 m |
| Algemene staat: | Luxe-afwerking |
Indeling
| Slaapkamers: | 3 (10.5 m², 10.5 m², 17 m²) |
| Badkamers: | 2 |
| WC: | 2 |
| Woonkamer: | 12 m² |
| Keuken: | 23 m², Open keuken, Ingericht zonder toestellen |
| Terras: | Ja |
| Tuin: | Ja |
Comfort
| Snelweg: | Ja - op 4000 m tot 5000 m |
| Treinstation: | Ja - op 1000 m tot 1500 m |
| Bushalte: | Ja - op 1000 m tot 1500 m |
| Winkel: | Ja - op minder dan 500 m |
| School: | Ja - op 1000 m tot 1500 m |
| Bank: | Ja - op 500 m tot 1000 m |
| Ontspanning: | Ja - op minder dan 500 m |
| Restaurant: | Ja - op 500 m tot 1000 m |
| Raamwerk: | Draai-/kiepramen, Aluminium |
| Beglazing: | Dubbel, Hoogrendementsglas |
| Elektriciteit: | Conform |
| Verwarming: | CV-ketel, Individueel, Aardgas |
| Internet: | Ja |
| Zonnepanelen: | Ja |
Wettelijke gegevens
| Niet geïndexeerd K.I.: | € 270 |
| Kadastrale benaming: | 24592 TIENEN 2 AFD |
| Kadastrale Nummers: | 0182F8P0000 |
| Kadastrale Oppervlakte: | 96 m² |
| EnergyClass: | A |
| Renovatieplicht: | Neen |
| Voorkooprecht: | Neen |
| Maatregelenregister: | Neen |
| Stedenbouwkundige bestemming: | Woongebied |
| Dagvaarding en herstelvordering: | Geen rechterlijke herstelmaatregel of bestuurlijke maatregel opgelegd |
| Overstromingsgevoelig: | Geen overstromingsgevoelig gebied |
| Overstromingsgebied: | Geen afgebakende zones |
| Overstromingskans perceel (P-score): | A |
| Overstromingskans gebouw (G-score): | A |
| Erfgoed: | Geen beschermd erfgoed |