Instapklare woning met zeer goede afwerking, 3 slaapkamers, 3 badkamers, tuin, terras en autostaanplaats in het centrum van Tienen – EPC 27 kWh/m² - bewoonbare opp. 172 m²
€ 483 000
Deze hoogwaardige nieuwbouwwoning maakt deel uit van een recent aangelegd, autovrij parkdomein met ondergrondse parking. U woont hier in alle rust en veiligheid, omringd door groen en een aangename mix van bewoners.
De woning wordt verkocht onder het btw-stelsel.
Via de inkomhal met gastentoilet komt u in de lichtrijke leefruimte met open, volledig geïnstalleerde keuken. De kwalitatieve en duurzame materialen zorgen voor een verzorgd, instapklaar geheel. Vanuit de leefruimte heeft u toegang tot het terras en de onderhoudsvriendelijke tuin.
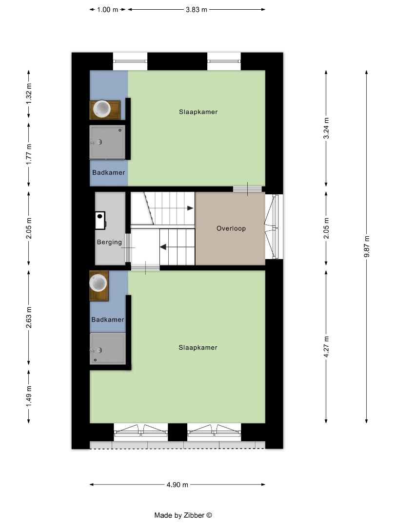
Op de verdiepingen bevinden zich een tweede leefruimte/tv-kamer en drie volwaardige slaapkamers, elk met eigen (douche)badkamer. Daarnaast zijn er een apart toilet en praktische bergingen voorzien. De woning is bovendien uitgerust met stijlvolle maatwerk inbouwkasten, wat zorgt voor extra comfort, opbergruimte en een strak afgewerkt karakter.
Met een EPC-label A, vloerverwarming op gas en reeds voorziene leidingen voor een warmtepomp is deze woning volledig toekomstgericht en energiezuinig.
Ondergrondse autostaanplaats, kelderberging en fietsenstalling kunnen bijgekocht worden voor € 30.000.
Voor meer info of een bezoek ter plaatse, contacteer ons gerust.
Algemeen
| Adres: | Donystraat 10/D Tienen |
| Referentie: | TK/03.2026 |
| Vraagprijs: | € 483.000 |
| Type: | Woning |
| Beschikbaar vanaf: | Bij akte |
| Ligging: | Landelijk |
| Bewoonbare opp.: | 172 m² |
| Type constructie: | Traditioneel |
| Bouwjaar: | 2025 |
| Op verdieping: | 0 |
| Algemene staat: | Luxe-afwerking |
Indeling
| Slaapkamers: | 3 (17.5 m², 13 m², 16.5 m²) |
| Badkamers: | 3 |
| WC: | 2 |
| Woonkamer: | 19 m² |
| Keuken: | 21 m², Open keuken, Ingericht met toestellen |
| Kelder: | Ja |
| Terras: | Ja |
| Tuin: | Ja |
| Garage: | 1 |
Comfort
| Snelweg: | Ja - op 4000 m tot 5000 m |
| Treinstation: | Ja - op 1000 m tot 1500 m |
| Bushalte: | Ja - op 1000 m tot 1500 m |
| Winkel: | Ja - op minder dan 500 m |
| School: | Ja - op 500 m tot 1000 m |
| Bank: | Ja - op minder dan 500 m |
| Ontspanning: | Ja - op minder dan 500 m |
| Restaurant: | Ja - op minder dan 500 m |
| Raamwerk: | Draai-/kiepramen, Aluminium |
| Dak: | Plat dak |
| Beglazing: | Dubbel, Hoogrendementsglas |
| Elektriciteit: | Conform |
| Verwarming: | CV-ketel, Vloerverw. geheel |
| Airco: | Ja |
| Internet: | Ja |
| Rookdetector: | Ja |
| Zonnepanelen: | Ja |
Wettelijke gegevens
| Niet geïndexeerd K.I.: | € |
| Kadastrale benaming: | 24593 TIENEN 3 AFD (Donystraat 8-10 ) |
| Kadastrale Oppervlakte: | 0 m² |
| EPC Certificaat Nr.: | 24107-G-OMV_2020000878/EP02583/A001/D02/SD001 |
| EPC Index: | 27,00 kWh/(m² jaar) |
| EnergyClass: | A |
| EPC Geldig tot: | 8/10/2035 |
| Renovatieplicht: | Neen |
| Stedenbouwkundige vergunning: | Ja |
| Voorkooprecht: | Neen |
| Verkavelingsvergunning van toepassing: | Neen |
| Stedenbouwkundige bestemming: | Woongebied |
| Dagvaarding en herstelvordering: | Geen rechterlijke herstelmaatregel of bestuurlijke maatregel opgelegd |
| Overstromingsgevoelig: | Geen overstromingsgevoelig gebied |
| Overstromingsgebied: | Geen afgebakende zones |
| Overstromingskans perceel (P-score): | |
| Overstromingskans gebouw (G-score): | |
| Erfgoed: | Geen beschermd erfgoed |