Open bebouwing met 4 slaapkamers tuin met prachtig zicht over de velden en garage in Haasrode op een perceel van 2986m² – EPC 431 kWh/m² - bewoonbare opp. 204 m²
€ 539 000
Deze open bebouwing is gelegen in Haasrode vlakbij winkels, scholen, .... en met goede verbinding naar Leuven.
Indeling:
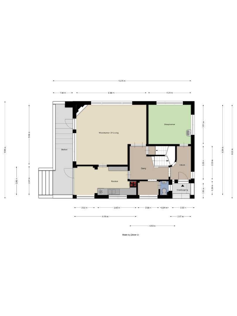
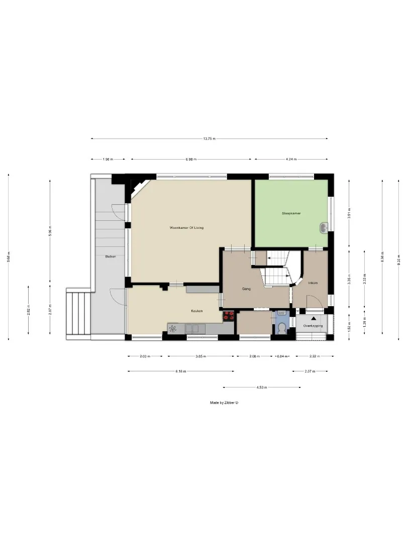
We betreden de woning via de ruime inkomhal, met apart gastentoilet en ruimte voor een vestiaire. Links van de inkomhal bevindt zich de open en lichtrijke leefruimte met authentieke elementen zoals de open haard. Via de leefruimte bereiken we de keuken. Via de keuken kan men het terras en de ruime oprit en tuin bereiken. De tuin is zeker de grootste troef van de woning met het prachtig zicht over de velden! Verder vinden we op het gelijkvloers nog een ruime slaapkamer met enkel lavabo van 17m². Ideaal als slaapkamer of bureau.
Op de eerste verdieping vinden we de nachthal met 3 ruime slaapkamers van 15m² en 11m². Verder vinden we hier een badkamer met ligbad, toilet, bidet en enkel lavabo.
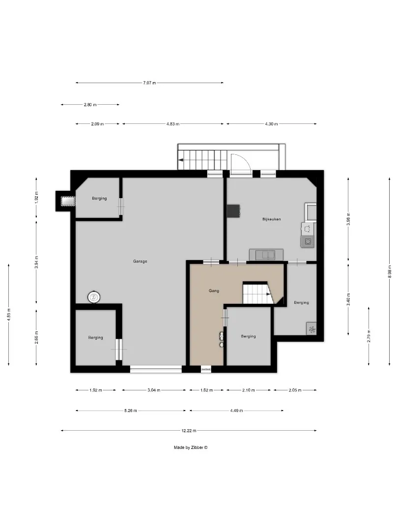
Verder de woning volledig onderkelder met garage en verschillende stockageruimtes.
Verwarming is op stookolie. Elektriciteit is niet conform.
Voor meer info of een bezoek ter plaatste, mag u ons steeds contacteren!
Algemeen
| Adres: | Blandenstraat 184 Haasrode |
| Referentie: | TK/03.2026 |
| Vraagprijs: | € 539.000 |
| Type: | Villa |
| Beschikbaar vanaf: | Bij akte |
| Ligging: | Landelijk |
| Perceeloppervlakte: | 2.986 m² |
| Perceelbreedte: | 23,1 m |
| Perceeldiepte: | 100,8 m |
| Bewoonbare opp.: | 204 m² |
| Type constructie: | Beton |
| Bouwjaar: | 1963 |
| Gevelbreedte: | 12 m |
| Algemene staat: | Te renoveren |
Indeling
| Slaapkamers: | 4 (15 m², 15 m², 11 m², 16.5 m²) |
| Badkamers: | 1 |
| WC: | 1 |
| Woonkamer: | 42 m² |
| Keuken: | 18 m², Gesloten keuken, Ingericht met toestellen |
| Zolder: | Ja |
| Kelder: | Ja |
| Terras: | Ja |
| Tuin: | Ja |
| Tuin oriëntatie: | West |
| Garage: | 2 |
Comfort
| Snelweg: | Ja - op 3000 m tot 4000 m |
| Treinstation: | Ja - op 4000 m tot 5000 m |
| Bushalte: | Ja - op minder dan 500 m |
| Winkel: | Ja - op minder dan 500 m |
| School: | Ja - op 1500 m tot 2000 m |
| Bank: | Ja - op 500 m tot 1000 m |
| Ontspanning: | Ja - op minder dan 500 m |
| Restaurant: | Ja - op 1500 m tot 2000 m |
| Raamwerk: | Draai-/kiepramen, PVC |
| Dak: | Zadeldak |
| Beglazing: | Dubbel - Ramen van 2012. |
| Elektriciteit: | Niet conform |
| Verwarming: | Stookolie |
Wettelijke gegevens
| Niet geïndexeerd K.I.: | € 2.013 |
| Kadastrale benaming: | 24034 OUD-HEVERLEE 4 AFD/HAASRODE/ (Blandenstraat ) |
| Kadastrale Nummers: | P0000 |
| Kadastrale Oppervlakte: | 2.986 m² |
| EPC Certificaat Nr.: | 20260324-0003831455-RES-1 |
| EPC Index: | 431,00 kWh/(m² jaar) |
| EnergyClass: | E |
| EPC Geldig tot: | 24/03/2036 |
| Renovatieplicht: | Ja |
| Stedenbouwkundige vergunning: | Ja |
| Voorkooprecht: | Neen |
| Verkavelingsvergunning van toepassing: | Ja |
| Stedenbouwkundige bestemming: | Andere Woongebied + agrarisch gebied. |
| Dagvaarding en herstelvordering: | Geen rechterlijke herstelmaatregel of bestuurlijke maatregel opgelegd |
| Overstromingsgevoelig: | Geen overstromingsgevoelig gebied |
| Overstromingsgebied: | Geen afgebakende zones |
| Overstromingskans perceel (P-score): | C |
| Overstromingskans gebouw (G-score): | A |
| Erfgoed: | Geen beschermd erfgoed |
| Deze eigendom kan onderhevig zijn aan de renovatieverplichting die door de Vlaamse overheid wordt opgelegd voor residentiële gebouwen. Consulteer voor meer informatie de website van het Vlaams Energie- en Klimaatagentschap via https://www.vlaanderen.be/een-woning-kopen/renovatieverplichting-voor-residentiele-gebouwen | |